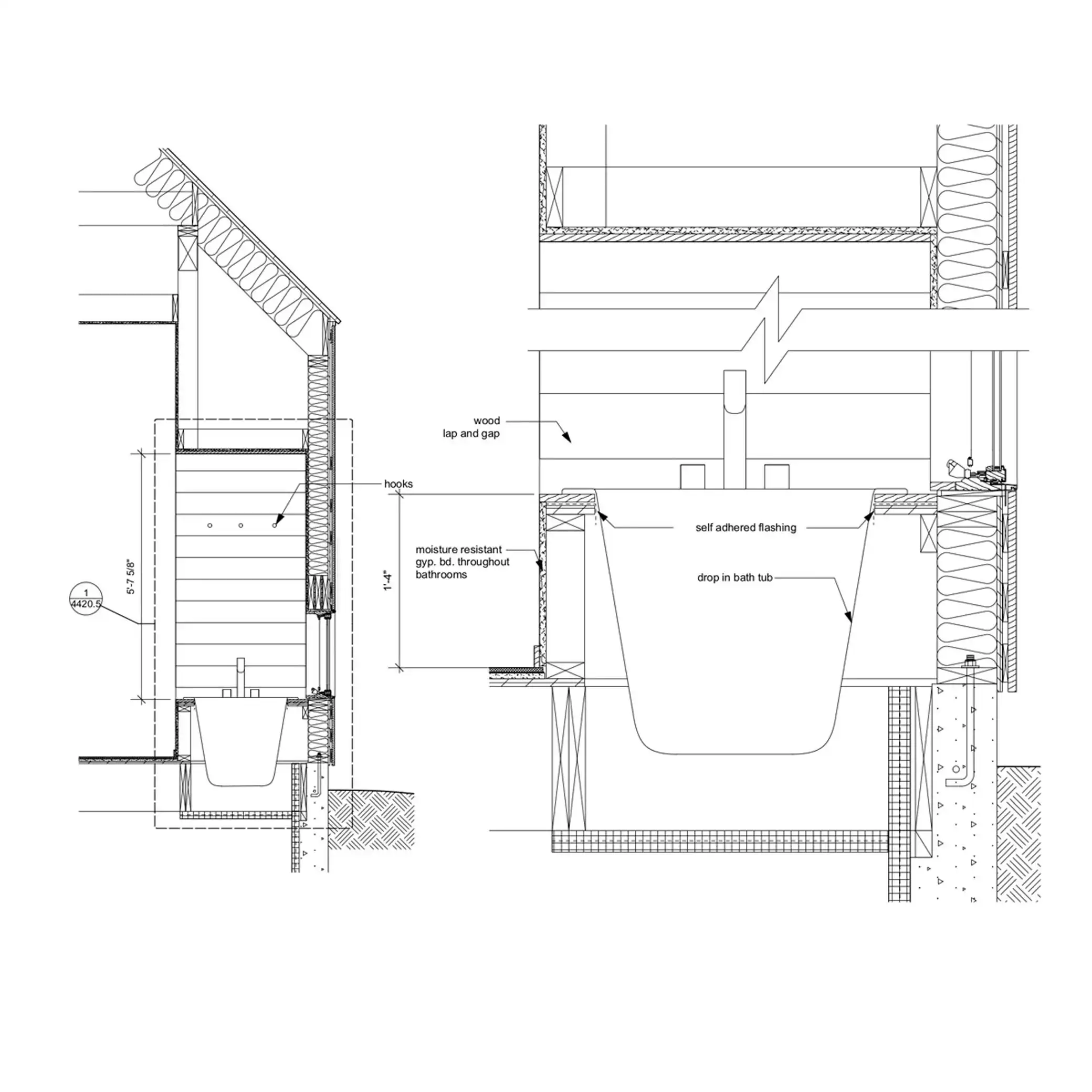
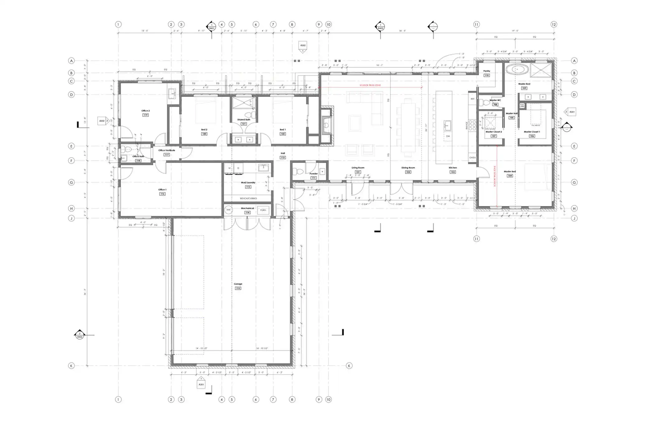
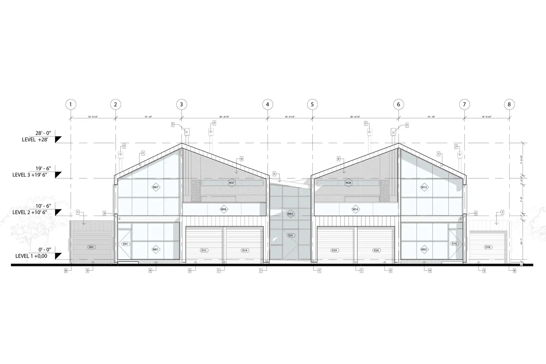
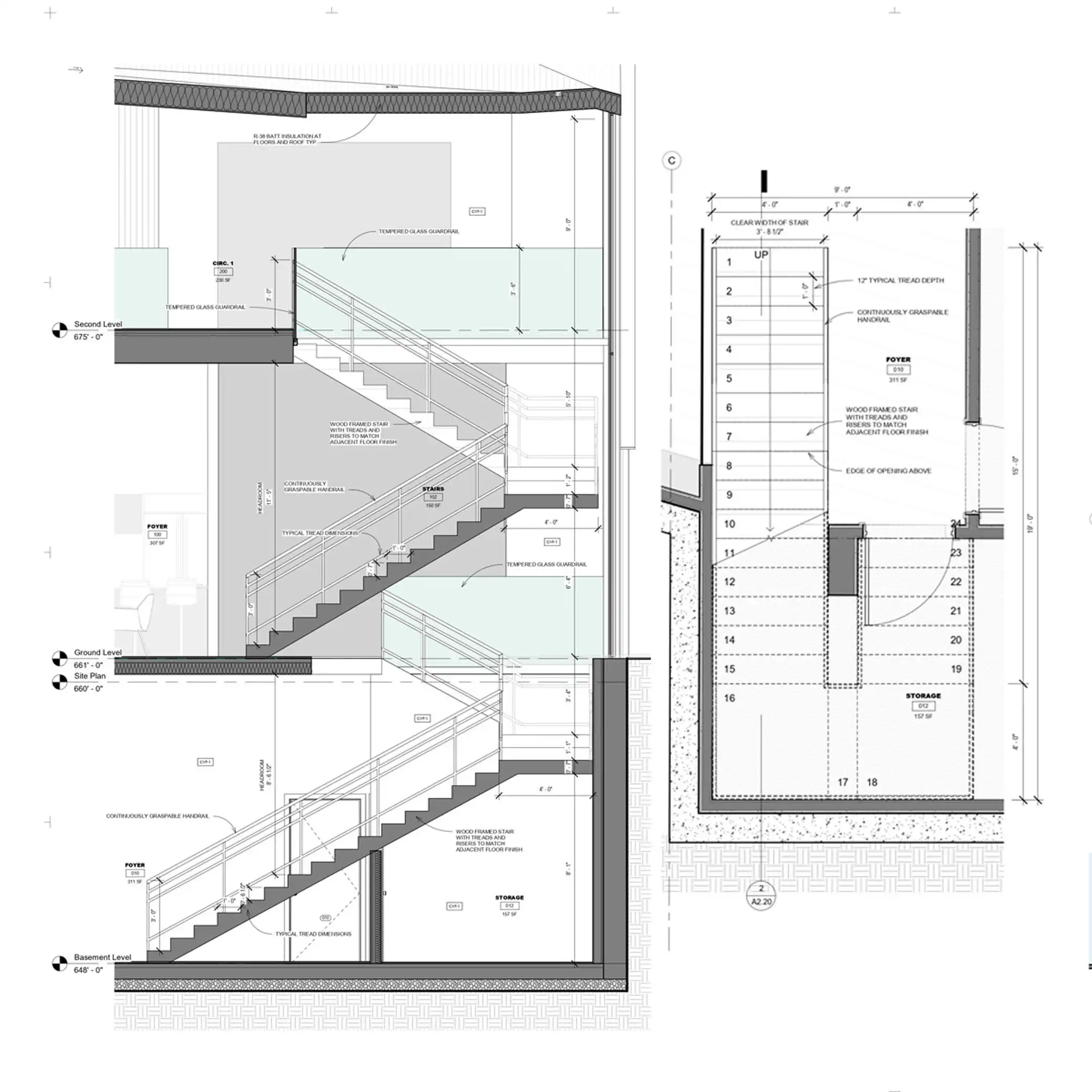
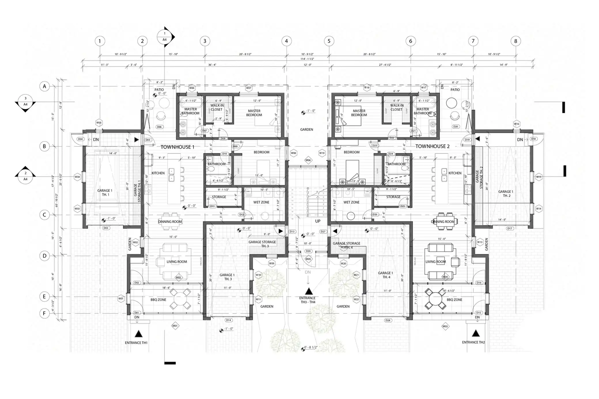
Professional Drafting Services Tailored to Your Needs

We turn your design ideas into precise, professional technical drawings ready for construction. From floor plans and sections to detailed elevations and specifications, our drawing services ensure your vision is accurately documented, and easy for builders to follow.